9月も終わりに近づき
少し暑さが落ち着く中と思いきや
長期予報ではまだまだ10月は暑い日が多いとか
でも、今年の冬は例年より寒くなる可能性もあるらしく
この分だと〝秋〟は週間イベントになってしまう気すらします。
2日程前の9月23日・・・どうやら「不動産」の日だとか
2(ふ)、十(どう)、3(さん)が由来らしく
かなり無理のある語呂合わせですが
かつては、9月は不動産の流通が活発になる時期ともいわれましたが
今は、必ずしもそうではなくなってます
そもそも、9月23日が「不動産の日」ということを
この仕事を始めて30年以上になりますが、ついぞ最近まで知りませんでした
で、ふと振り返って30数年
ここ最近入社した22,23歳の新入社員が生誕する前からこの仕事
よくぞ続いたもんかと
そんな年数を振り返るにつき
一つ思うところがあります
ここから先は極私的見解になりますが・・・
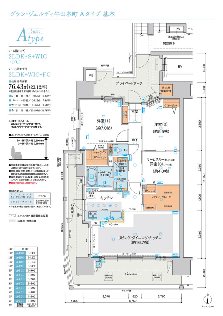
今現在販売を担当しております
グランヴェルディ牛田本町
の建設地でもあります牛田本町エリア
何時の時代も
「家を探してください」
「土地を探してください」
「中古住宅でもいいです」
常にお客様から依頼され続けた記憶があります。
何時の時代も住宅地としての評価が変わらず、安定しているなと
改めて感じる次第
ましてや、直線距離で2キロほどの広島駅エリア
ミナモアの開業や広島電鉄の2Fフロア乗り入れ供用開始等
まさに激変しております故、広島都市圏でトレンドと目される
エリアの一つになってます
そんなエリアで好評分譲中の
グランヴェルディ牛田本町
おかげ様で Bタイプが完売 です
そしてAタイプも残住戸が少なくなってきました
全戸平面駐車場使用料0円で
床暖房標準装備で
エネルギー消費量23%削減! ZEH-M oriented 認定
自身のフロアに自動で停止 先進セキュリティー採用の両開きエレベーター
ご案内したいことは山ほどあります
今こそ、ご検討頂く絶好の機会かと思います故、是非ともご検討下さい!
資料のご請求・ご来場予約は下記より
***********************************************************************************
お問合せは「ヴェルディマンションギャラリー観音」
営業時間/10:00~19:00【定休日:火・水曜日】(祝日除く)

